Die DOBNER GUTWERT GmbH gehört zur Unternehmensgruppe
BRF FRIEDRICHSHAIN GmbH und ist Hersteller der abgehängten
ORIGINAL DOBNER Metalldecken

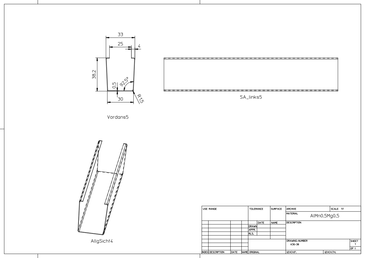
Abgehängte ORIGINAL DOBNER Aluminium-Smart-Baffle-Decke TYP 30-38 mit offenen Fugen